| Ausstattung | |
|---|---|
| Barrierefrei | Ja |
| Befeuerung | Fernwärme |
| Dachform | Flachdach |
| Heizungsart | Zentralheizung |
| Unterkellert | Ja |
| Kennzahlen | |
| Anzahl Gewerbeeinheiten | 3 |
| Anzahl Parkplätze | 6 |
| Gewerbefläche | 7.350 m² |
| Grundstücksfläche | 1.354 m² |
| Lage | |
| Straße | Plovdiver Straße 36-38 |
| Ort | 04205 Leipzig |
| Preise | |
| Courtageinformationen | Dieses Angebot ist provionspflichtig. Die Käuferprovision beträgt 7,14% inkl. MwSt. vom notariellen Kaufpreis ist fällig und verdient mit Abschluss eines notariellen Kaufvertrages. |
| Kaufpreis | 650.000 € |
| Kaufpreis bezogen auf Jahresmiete | 16,1 € |
| Kaufpreis pro m² | 884 € |
| Mieteinnahmen p.a. IST | 40.200 € |
| Mieteinnahmen p.a. SOLL | 40.200 € |
| Zustand | |
| Zustandsart | Gepflegt |
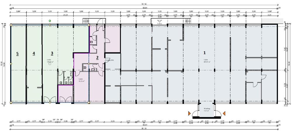
Zum Verkauf steht eine Gewerbeeinheit in Grünau, direkt an der Straßenbahnhaltestelle Plovdiver Straße. Das zu DDR- Zeiten errichtete Gebäude ist eingeschossig und unterkellert und verfügt über 3 Gewerbeeinheiten die vermietet sind. Zusätzlich noch 4 Stellplatze die ebenfalls fremdvermietet sind.
- Einheit 1: 460 m² Filiale eines Leipziger Bestattungsunternehmens
- Einheit 2: 95 m² Asia Imbiss
- Einheit 3-5: 3 separate Gewerbeflächen, Gastro und geplant Späti und Blumen
Die Beheizung erfolgt zentral über einen Fernwärmeanschluss/ Heizköper. Die Gewerbeeinheit 1 ist langjährig vermietet ebenso die Nr. 2. Die Nr. 3- 5 hatte aktuell einen Mieterwechsel.
Die zum Verkauf stehende Gewerbeeinheit befindte sich gegenüber der Haltestelle Jupiterstraße, direkt an der kleinen Fußgängerzone die zum WK 7 führt. In unmittelbarer Nähe befinden sich die Stadtteilbibliothek, ein ALDI sowie einige Gastro Betriebe.