Menü

Erdgeschosswohnung - Kauf

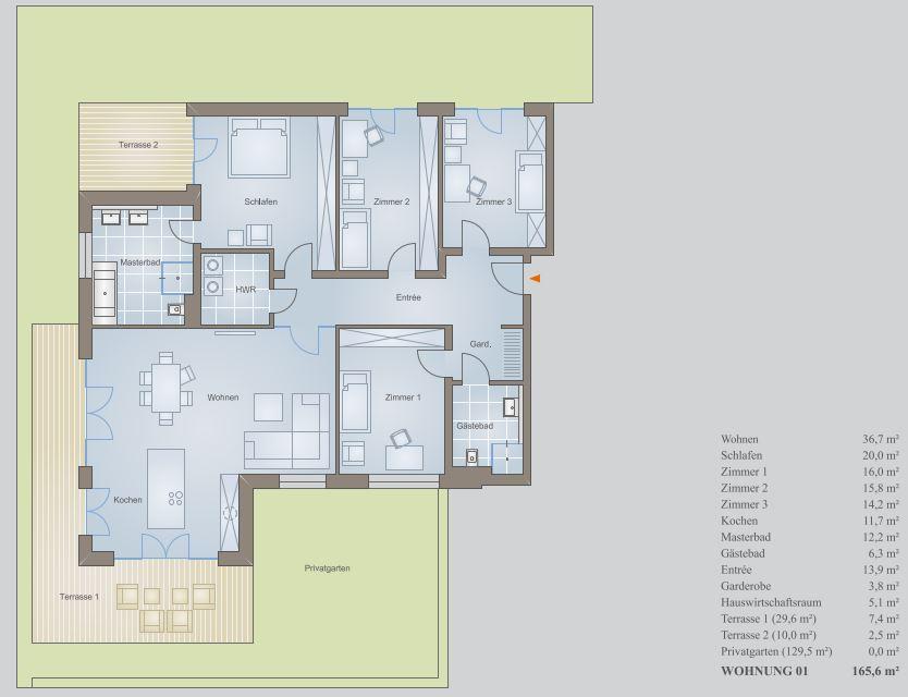
Exklusive Neubauwohnung im Waldstraßenviertel - 5 Zimmer, 165 m², Tiefgaragenstellplatz & E- Ladeanschluss

Ausstattung
Ausstattung Luxoriös
Badausstattung Dusche, Badewanne, Fenster
Balkon / Terrasse Ja
Barrierefrei Ja
Bodenbelag
Fensterrahmen Kunststoff
Garten /-nutzung Ja
Keller Ja
Küche Einbauküche, Offene Küche
Personenaufzug Ja
Rollladen Ja
Kennzahlen
Anzahl Badezimmer 2
Anzahl Parkplätze 1
Anzahl Schlafzimmer 3
Anzahl Zimmer 5
Wohnfläche 165 m²
Lage
Straße Fregestraße 3a
Ort 04105 Leipzig
Preise
Courtage nein
Kaufpreis 1.200.000 €
Stellplatzpreis 30.000 €
Verwaltung
Energiezertifikat Vorhanden - Übergabe bei Besichtigung

Ausstattung


Im Herzen des beliebten Waldstraßenviertels erwartet Sie diese außergewöhnliche Neubauwohnung mit rund 165 m² Wohnfläche, großzügigem Grundriss und modernster Haustechnik. Die Wohnung überzeugt durch lichtdurchflutete Räume, hochwertige Ausstattung und einen privaten Gartenanteil – ideal für anspruchsvolles Wohnen in einer der schönsten Lagen Leipzigs.

Ausstattung & Highlights
• Großzügige 5-Zimmer-Wohnung mit ca. 165 m² Wohnfläche
• Offener Wohn- und Essbereich mit Zugang zum Garten
• Helle Räume mit bodentiefen Fenstern und Echtholzparkett
• Moderne Einbauküche inklusive
• Zwei hochwertige Bäder (Badewanne & Dusche)
• Kombiheizung aus Gas und Luftwärmepumpe mit Kühlfunktion für ein angenehmes Raumklima
• Fußbodenheizung in allen Räumen
• Tiefgaragenstellplatz mit E-Ladeanschluss inklusive/optional
• Barrierearmer Zugang, Aufzug, Videogegensprechanlage
• Privater Gartenanteil zur ruhigen Hofseite

Lage


Das Waldstraßenviertel zählt zu den exklusivsten Wohnadressen Leipzigs – geprägt von gründerzeitlicher Architektur, kurzen Wegen in die Innenstadt und unmittelbarer Nähe zum Rosental und zur Arena Leipzig. Einkaufsmöglichkeiten, Cafés, Schulen und öffentliche Verkehrsmittel befinden sich in direkter Umgebung.

Preisinformationen


Die Wohnung ist ideal für Familien, Paare mit Platzbedarf oder das Wohnen und Arbeiten unter einem Dach.
Ein Tiefgaragenstellplatz mit E-Ladeanschluss steht zur Verfügung.
Bezug nach Absprache.